
- 产品简介
全自动玻璃切割机流水线配置单
CNC-4228型全自动切割生产线:
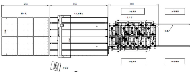
一、设备工作区域面积:21000 mm×5200 mm×900 mm

二、设备组成:XC-SP-4228型双翻双工位全自动玻璃上片台(机械式)+XC-CNC-4228型全自动玻璃切割机{双驱}+XC-QP-4228型玻璃掰片台
三、设备性能:
XC-SP-4228全自动玻璃上片台(双翻双工位)
1、设备参数及性能:
a. 设备构成:
设备框架系统
设备传输系统
真空吸附系统
机械翻转系统
电器控制系统
b. 整机材料选用国家标准含锰型材桥梁钢(Q345A)焊接成型并经过时效处理,此类钢材综合力学性能良好,塑性和焊接性能良好。表面经过特殊除锈工艺去除表面锈斑和表氧化层,底层喷高级锌黄底聚酯漆,表面喷涂高级汽车漆。
c. 真空系统设计合理,真空度高,吸取工件快,可靠性高,主要真空压力开关采用日本SMC品牌。
d.设备具有一键复位功能,只需按一下触摸屏就能完成自动启动之前的所有准备工作,大大提高工作效率。
e.设备具有故障报警及安全报警装置。
f.玻璃提升机构采用平面四连杆结构,比以往的丝杠升降机构更加平稳可靠。
g.机械配置:
翻转齿轮链条:高精度耐磨型,链条采用全封闭结构,使得设备整体结构美观大方,安全可靠,防止意外事故发生。
传输滚轮:进口PU材质
真空吸盘:进口丁腈胶材质
传输/翻转电机:台湾台邦或晟邦
真空泵:风流量40立方米/小时
h.整体线缆、气管布置合理,完全密封
i.电器元件:
PLC:台湾台达:
触摸屏:北京昆仑通态(7寸)
变频器:台湾台安
主控电磁阀:台湾亚德客
低压电器:施耐德
j.基本性能:
设备外形尺寸:4600mm×3000mm
最大上片尺寸:4200×2800mm平板玻璃
上片厚度:3mm~19mm平板玻璃
取片周期:≤50秒/片
最大吸片深度:700mm
上片翻转臂:双翻,单面吸盘设置为4臂共24个
电源/功率:8KW
安装电源:380V/50HZ
设备功率:8KW
压缩空气:0.8Mpa(使用方提供)
XC-CNC-4228型全自动玻璃切割机:(双驱)
1、设备规格:
★设备外形尺寸:5200mm×3540mm
★可切割平板玻璃最大尺寸:4200mm×2800mm平板玻璃
★工作台高度:900mm±50mm
★设备重量:3T
★切割厚度:3mm~19mm平板玻璃
2、切割参数:
★直线平行度:≤±0.20mm/m
★对角线精度:≤±0.25mm/m(以上精度以掰片前切割线精度为准)
★切割速度:0 ~ 160m/min.
3、电源/功率:
★安装电源要求:380V/50HZ(三相四线),特殊情况可根据客户要求调整
★设备实际功率:8KW+0.8KW
★压缩空气:0.6MPa(使用方提供)
4、设备性能
★ 整机材料选用国家标准含锰型材桥梁钢(Q345A)焊接成形并经过时效处理,此类钢材综合力学性能良好,塑性和焊接性能良好。表面经过特殊除锈工艺去除表面锈斑和表氧化层,底层喷高级锌黄底聚酯漆,表面喷涂高级汽车漆(并可根据客户机型配色)。
★ 结构优化:设备经过专业的结构软件分析,保证其机台的稳定,动态的平衡,力学的强度均达到最完美的匹配,并确保桌台结构不变形。
★ 切割刀座:采用日本SMC比例电磁阀,根据玻璃厚度自动调节压力,刀头360度旋转,上下缓冲下刀切割(可准确切割任何直线及各种异形的玻璃),刀头装有爬坡轮,有效防止刀头总成及玻璃的意外损坏。
★ 台面:采用进口防水面板,可有效防潮。
★ 毛毡:中外合资工业毛毡(纤维和羊毛)平整度好,并可防静电,避免粘附玻璃屑
★ 定位系统:光电定位,定位精准,自动寻边定位系统,无需打边,大大提高玻璃切裁率。
★ 导轨有自动注油润滑装置,注油频率可根据实际使用环境自行设定控制。
★ 切割供油方式:切割时自动注油,与下刀同步
★ 输送装置:气浮加皮带输送
★ 导轨用直线导轨,切割精度高,噪音小
5、机械部分
★ 台板:采用防水高密度板(平整度≤±0.20mm/m)
★ 齿条/齿轮:日本KHK
★ 导轨:台湾上银
★ 传输带/带轮:中外合资
★ 刀轮/轮夹:比利时
★ 传动系统具有自动注油功能
6、电器部分
★ 采用PC电脑进接进行控制,微软视窗界面
★ 电压:380V/50HZ,设备带稳压装置
★ 电机:日本安川伺服电机
★ 控制器:美国工控一体机GALIL
★ 光纤传感器:日本神视
★ 比例阀:日本SMC
★ 低压电器:法国施耐德
★ 减速机:台湾PHT
★ 开关电源:日本欧姆龙
XC-QP-4228气垫玻璃掰片台:
带气垫浮片的玻璃开片系统;
1、台面尺寸:4200mm×2800mm×900mm
2、剥片棒数量: 1+2支
3、带气浮装置,高密度板台面
4、功率:6.6KW
5、多点顶杆控制功能,方便可靠


